طراحی پلان ساختمان مسکونی | ضوابط پلان و هزینه نقشه کشی
1403/12/26
نکات و اصول مهمی در مراحل طراحی پلان معماری ساختمان مسکونی و هزینه طراحی پلان و نقشه ساختمان وجود دارد.در طراحی پلان و توجه به طراحی نقشه معماری فضای نشیمن خانوادگی (خصوصی) در طراحی پلان مسکونی، پلان آشپزخانه و پلان غذاخوری خانوادگی که جزوی از عرصه زندگی خانوادگی هستند. عرصه زندگی خصوصی شامل اتاق خواب مستر، فرزندان و اتاق مطالعه است.عرصه پذیرایی و مراسم شامل اتاق پذیرایی، غذاخوری، ورودی و سرویس بهداشتی مهمان است.همچنین در این مقاله در مورد هزینه نقشه کشی ساختمان هم مطالبی بیان میکنیم
در این مقاله مطالب زیر را مطالعه خواهید کرد.برای رجوع به هر قسمت میتوانید روی فهرست کلیک کنید
- مراحل طراحی پلان ساختمان مسکونی
- عرصه چیست؟
- نکات طراحی پلان مسکونی
- قیمت طراحی پلان مسکونی
- نرم افزار های طراحی پلان
مراحل طراحی پلان ساختمان مسکونی
یک طراحی پلان معماری دارای مراحل مختلفی است که شامل :
-طرح و برنامه ریزی برای یک ساختمان مسکونی میباشد
- نقشه های معماری
- مشخصات طراحی
- محاسبات
- برنامه ریزی زمان مراحل ساخت و سایر مستندات نیز باشد.
قطعا تاحالا پلان یک ساختمان مسکونی را دیده اید یا شاید به فکر طراحی پلان معماری آن برای ساختمان خود یا دیگر آشنایان باشید.سوالاتی در ذهن شما وجود دارد که چگونه پلان طراحی کنیم یا رابطه بین فضاهای مختلف چکونه باید باشد تا اصول اولیه طراحی پلان به خوبی در پلان مسکونی رعایت شده باشد.در کنار راعیت این اصول در نقشه ساختمان،هزینه و قیمت هم مهم است.اینکه هزینه طراحی نقشه معماری ساختمان نیز برای شما چقدر میشود. البته توجه کنید که آموزش دیدن و یادگیری آموزش طراحی پلان مسکونی و نقشه ساختمان مسکونی بسیار مهم است.
حتما بخوانید:
پس این موضوع اهمیت دارد که فضاهای مختلف را بشناسیم و مراحل طراحی پلان را به ترتیب و درست انجام دهید تا پلان ساختمان مسکونی شما به اصولی ترین و زیبا ترین شکل ممکن طراحی شود ( مثلا سرویس بهداشتی رو به پذیرایی باز نشود ).
در ابتدا بهتر است برای طراحی نقشه ساختمان تعاریف مختلف از فضاهای یک ساختمان مسکونی را بدانیم و با رعایت کردن نکات مهم در طراحی پلان، نقشه ساختمان را به بهترین شکل ممکن طراحی کنیم.
در ویدیو زیر میتواین یکی از نرم افزار های جدید که در طراحی پلان به شما کمک میکند را ببینید
برای سفارش پروژه معماری و دریافت مشاوره رایگان از طریق تلگرام با ما همراه باشید
عرصه چیست؟
جهت کارایی بیشتر فعالیت های ساختمانی باید تمامی فضاهای یک ساختمان شناسایی و گروه بندی شوند و سپس با پیش بینی ارتباط مناسب میان آن ها، بتوانند با توجه به اصول اولیه طراحی پلان همچون یک مجموعه واحد عمل کنند. طراحی مسکن نیز از این امر مستثنی نیست وپیش از طراحی پلان مسکونی لازم است دسته بندی فضاها و یا به عبارتی عرصه بندی در آن تعیین گردد.
( به تعدادی از فضاها و عملکردهای سازگار که با هم وابستگی دارند و در بخش مشخصی از نقشه طرح و مکانیابی می شوند، عرصه می گویند)
پیش از انجام دسته بندی، باید معیارهای درستی برای این کار تعیین شود تا قرارگیری فضاهای هماهنگ و سازگار در یک گروه به درستی صورت گیرد و عرصه های ناهماهنگ ازیکدیگر دور شوند. معمولا این مشخصه ها از بررسی و توجه به الگوهای فرهنگی، اقلیمی و اعتقادی حاصل می شود. در هر قسمت از کشور مردمی با قومیت ها و آداب گوناگون زندگی می کنند، بنابراین دارای شرایط اقتصادی، فرهنگی و اجتماعی متفاوت و دارای نقاط مشترکی چون مسائل اعتقادی و مذهبی نیز هستند. اما عیناً تمامی فضاهای خانه آن ها مشابه یکدیگر نیست و برای طراحی پلان هر خانواده باید به الگوی زیستی آن منطقه توجه شود.

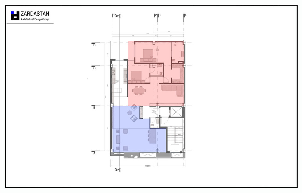
یکی از نکات طراحی پلان نزدیکی فضاهای نامرتبط است که سبب اختلال در عملکرد آن ها شده و موجب عدم رضایت ساکنین می شود. یکی از ملاک های دسته بندی فضاها در طراحی پلان مسکونی میزان عمومی یا خصوصی بودن آنهاست، ممکن است در بعضی فرهنگ ها دسته بندی دیگری مانند، تقسیم فضاهای مورد استفاده در شب یا روز انجام شود. اما با توجه به موضوع محرمیت در ایران این دسته بندی بر اساس فضاهای خصوصی و فضاهای عمومی بیشتر مورد پذیرش طراحان است. در این عرصه بندی برای طراحی خانه مسکونی پنج عرصه در نظر گرفته می شود.
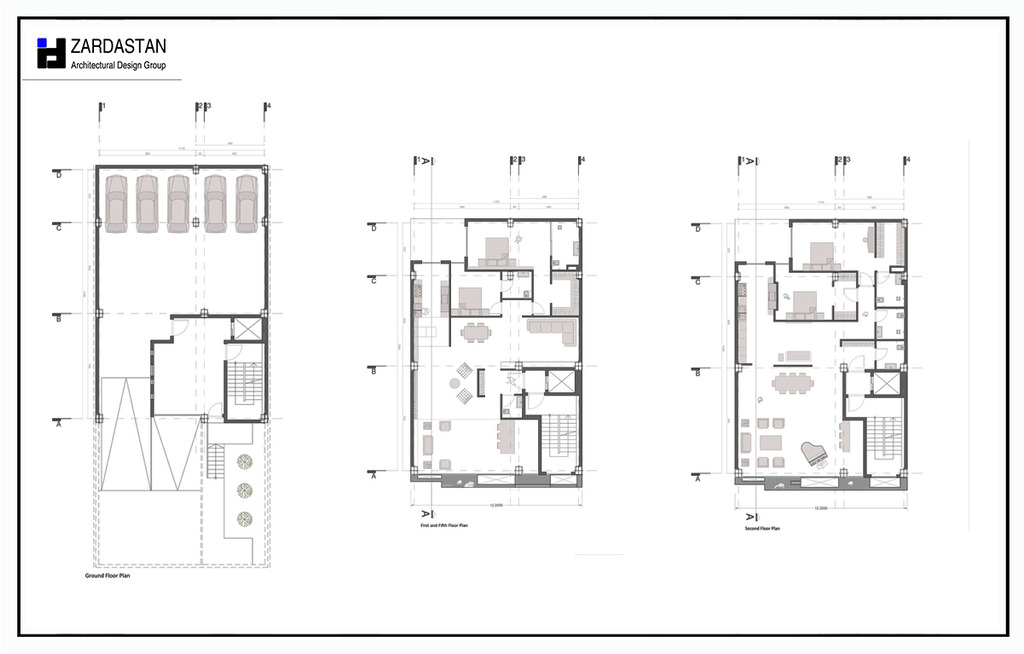
عرصه زندگی خانوادگی
دکوراسیون نشیمن خانوادگی (خصوصی) (Family room) آشپزخانه و غذاخوری خانوادگی جزو این دسته هستند. این عرصه در طراحی پلان معماری بهتر است دارای فضایی بسیار آرام و خودمانی باشد که اتفاقات جمعی بین افراد خانواده به وقوع می پیوندد لذا این عرصه، مهمترین قسمت خانه خواهد بود. شناسایی فضاهایی که در این عرصه قرار می گیرند و تلاش برای ساماندهی مناسب میان آن ها، شرایط مطلوبی را جهت دور هم جمع شدن و فعالیت هایی همچون گفتوگو، تماشای تلویزیون، مطالعه، بازی و ... فراهم می کند. به جهت استفاده طولانی مدت از این عرصه بهتر است بهترین موقعیت را به آن اختصاص داد و طراحی پلان با فضاهای باز همچون بالکن و ورودی در ارتباط باشد.

عرصه زندگی خصوصی
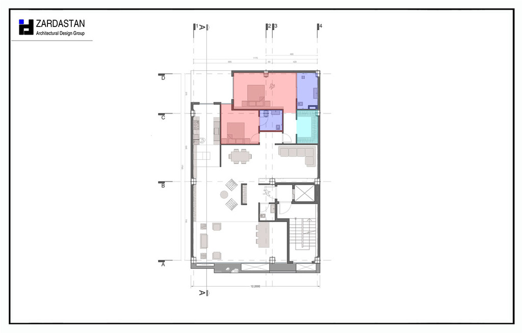
این عرصه آرام ترین و خصوصی ترین بخش خانه است. به صورت مستقل و جدا از عرصه پذیرایی طراحی می شود.
در عین حال که این عرصه باید با نشیمن در ارتباط باشد اما نباید فعالیت های عرصه عمومی سبب سلب آرامش از این بخش گردد. این عرصه شامل اتاق خواب والدین، فرزندان و اتاق مطالعه است. در فضای اتاق خواب ها فعالیت هایی مانند استراحت کردن، تعویض لباس، مطالعه و گاهاً کار به وقوع می پیوندد. این عرصه باید در بخش آرام و بی صدای خانه واقع شود، به حمام ها و سرویس ها دسترسی داشته باشد.باید توجه کنیم.باید به جانمایی سرویس بهداشتی در پلان توجه و اصول طراحی سرویس بهداشتی را رعایت کنیم. ابعاد و اندازه ها در پلان اتاق خواب ها با توجه به تعداد افراد و وسایل و مبلمان مشخص می شود.
حتما بخوانید:
هر آنچه که پیش از بازسازی آپارتمان خود باید بدانید
اما به در طراحی پلان طور کلی اتاق خواب والدین (اتاق خواب مستر) بزرگتر از سایر اتاق خواب ها باید طراحی گردد. لوازمی چون تخت خواب، آینه، کمد لباس، میز و صندلی مطالعه، قفسه کتاب، مبل راحتی، قفسه نگهداری اشیاء در اتاق خواب ممکن است وجود داشته باشد. آن چه که سبب بالاتر رفتن کیفیت اتاق خواب می شود، توجه به آفتابگیر بودن آن و ارتباط با بالکن و داشتن دیدن مناسب به فضای مطلوب است. اگر در خانه ای احتیاج به اتاق خواب مهمان بود، این فضا از عرصه خصوصی جدا می شود و در عرصه پذیرایی قرار می گیرد و در زمان هایی که مورد استفاده قرار نمی گیرد فعالیتهایی مانند مطالعه و خیاطی در آن انجام می شود.

عرصه پذیرایی و مراسم
برقراری ارتباط و معاشرت با فامیل و دوستان و همسایگان در این عرصه به وقوع می پیوندد و شامل اتاق پذیرایی، غذاخوری، ورودی و سرویس بهداشتی مهمان است. در آن برگزاری جشن ها، مهمانی ها، مراسم مذهبی نیز انجام می شود. در پلانهای مسکونی با متراژ که میتوان دکوراسیون پذیرایی کوچک و نشیمن را یکی کرد و فضایی بزرگتر و انعطاف پذیرتر در اختیار استفاده کننده قرار می دهد. بهتر است این فضا در مجاورت ورودی و غذاخوری باشد و از نور و تهویه مناسب بهره مند شود. کیفیت طراحی پذیرایی به خوبی میتواند گویای فرهنگ و ارزشهای خانواده باشد. البته برای استقلال بیشتر فضای ناهارخوری میتوان به وسیله پله، دست انداز، دکور یا دیوار آن را از پذیرایی تفکیک کرد.

عرصه خدمات و پشتیبانی
امکان زندگی راحت توأم با آرامش در یک خانه به پیش بینی و طراحی مناسب عناصر خدماتی مورد نیاز چون پارکینگ، انباری، زیرزمین، رختشوی خانه و موتورخانه و بهره مندی از سیستم های مناسب مکانیکی و الکتریکی وابسته است.

عرصه فضاهای باز و نیمه باز
طراحی پلان خانه مسکونی با طراحی فضاهای داخلی، حجم آن، محوطه و حیاطی که دربرگیرنده آن است تکامل می یابد.یک طراح و معماری باید از همان ابتدای طراحی مسکن باید توجه ویژه به محیط اطراف و فضاهای باز و نیمه باز داشته باشد. نحوه تعریف رابطه فضاهای داخلی با فضاهای باز و نیمه باز بر کیفیت و عملکرد آنها تأثیر زیادی دارد.
پس از آشنایی با عرصه های مختلف فضاهای مسکونی نوبت به آن رسیده است که اصول طراحی پلان مسکونی بازگو شود.
نکات طراحی پلان مسکونی
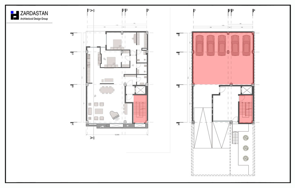
مکان یابی پله ها و آسانسور
از نکات مهم طراحی پلان مسکونی جانمایی مناسب باکس پله و آسانسور است. در این جانمایی باید به عواملی مثل عرض و شکل زمین، تعداد واحد در هر طبقه، تعداد پارکینگ مورد نیاز در همکف و زیرزمین (در صورت وجود) و… توجه نمود. سپس باید در ارتباط با شکل سرویس پله و اینکه سرویس پله 4 طرفه، 3 طرفه یا پله 2 طرفه باشد، تصمیم گیری کرد. هرچند هیچ قانون کلی در این مورد وجود ندارد و با توجه به شکل و ابعاد زمین و محدودیت های پروژه باید بهترین موقعیت قرارگیری پله و آسانسور را تعیین نمود، اما معمولا مناسب ترین موقعیت سرویس پله و آسانسور در طراحی پلان ساختمان، در وسط پلان است اما برای تامین پاکینگ در گوشه های ساختمان قرار میکیرد.

تقسیم بندی فضاهای عمومی و خصوصی در پلان
پس از تعیین شدن محل پله در پلان، باید یک مرزبندی کلی در مورد فضاهای عمومی، فضای خصوصی و فضای نیمه خصوصی انجام شود. در واقع باید پلان را لکه گذاری کنیم. البته لکه گذاری پلان شامل جانمایی پله و آسانسور هم خواهد شد،اما به دلیل اهمیت بسیار زیاد سرویس پله ها و تاًثیرگذاری آن در روند طراحی مجموعه مسکونی باید در اولین مرحله از طراحی و به صورت مجزا قرار گیرد. برخلاف تصور خیلی از هنرجویان معماری، لکه گذاری پلان ساختمان مسکونی اصلا کار سختی نیست. هر چند اینکار در ساختمان های با مساحت زیاد و یا در طراحی های خاص شاید کمی سخت به نظر برسد و زمان بیشتری ببرد، اما در طراحی آپارتمان های مسکونی به هیچ عنوان کار دشواری نیست. در این مرحله شاید بهتر باشد یک سمت باکس پله به فضاهای عمومی و سمت دیگر به فضاهای خصوصی تعلق گیرد.

جانمایی آشپزخانه و ورودی ساختمان
یکی از موضوعاتی که در کیفیت طراحی پلان تاًثیر بسزا دارد، تصمیم گیری در مورد موقعیت آشپزخانه است و اینکه این فضا باید از تهویه و نور مناسب بهره مند گردد. ورودی آشپزخانه بهتراست نزدیک به درب ورودی در پلان باشد و همچنین با پذیرایی و نشیمن نیز در ارتباط مستقیم باشد. همچنین به جهت ارتقاع مطلوبیت این فضا بهتر است که محل کار که شامل سینک و گاز است از قسمت های پذیرایی قابل دیده شدن نباشد.

تصمیم گیری در مورد نحوه چیدمان اتاق خواب ها و حمام نسبت به یکدیگر
بخش طراحی پلان اتاق خواب ها باید با حوصله انجام شود و بهترین حالت جانمایی اتاق خواب انتخاب شود. باید به این نکته در اصول طراحی اتاق خواب ها توجه نمود که یکی از اتاق خواب ها بزرگتر از بقیه به عنوان اتاق خواب والدین ( اتاق خواب مستر ) در نظرگرفته شود و مساحت آن حداقل 15 مترمربع باشد و همچنین درب اتاق خواب والدین از اتاق های دیگر فاصله داشته باشد. حتما برای اتاق خواب ها یک فیلتر ورودی در نظر بگیریم و دقت کنیم درب اتاق ها از سایر قسمت های منزل به طور مستقیم قابل رویت نباشد. در طراحی پلان همه اتاق خواب ها دارای کمد با عرض استاندارد 60 سانتی متر باشند. بهتر است عمق یکی از کمدها برای قرارگیری رختخواب 80 یا 100 سانتی متر باشد.حمام در نزدیکی اتاق خواب ها طراحی شود و حتما توجه شود که درب آن از سایر قسمت های منزل قابل رویت نباشد.

ستون گذاری با توجه به موقعیت قرارگیری ماشین ها در پارکینگ و شکل پلان طبقات
پس از انجام کلیات و قبل از انجام جزییات باید ستون گذاری ها انجام شود. برخلاف تصور بسیاری از دوستان عزیز بخش ستون گذاری یکی از مراحل راحت کار طراحی پلان مسکونی است. به صورت کلی ابتدا باید به سراغ پارکینگ رفته و باتوجه به تعداد و موقعیت قرارگیری ماشین ها، ستون گذاری انجام می شود و سپس موقعیت قرارگیری این ستون ها در پلان تیپ طبقات اعمال می شود. در این مرحله شاید طراح مجبور شود دست به تغییرات کوچکی در طراحی پلان بزند.

انجام اصلاحات پلان و رعایت ریزه کاری های مربوط به طراحی داخلی
حال دیگر شکل کلی پلان درآمده است و باید طراح به سراغ ریزه کاری ها و طراحی داخلی برود. در این قسمت طراح مجاز است که تغییرات جزئی در طراحی پلان انجام دهد اما به هیچ عنوان نباید تغییرات کلی را در طراحی اعمال نماید.

هزینه نقشه کشی ساختمان
قیمت و براورد هزینه برای طراحی نقشه ساختمان مسکونی به عومل مختلفی بستگی دارد.نقشه هایی که در یک ساختمان میتوان در جهت طراحی آن اشاره کرد :
- پلان معماری فاز یک
- نما
- مقطع
- پلان پارکینگ
- پلان طبقات
- پلان بام
- پلان معماری فاز دو
- پلانهای اندازه گذاری
- جزییات اجرایی کفسازی
- نماهای اندازه گذاری
- تعیین متریال
- مقاطع طولی و عرضی اجرایی
- برش های قایم از دیوارهای نما
- جزییات اجرایی نما
- جزییات اجرایی سقفهای کاذب
- نقشه های اجرایی کابینت
- نقشه های اجرایی کابینت کمد
- تیپ بندی دربها و پنجره ها
- نقشه مقاطع ساختمان
- نقشه مبلمان فضا
- پلان اندازه گذاری
- پلان سازه
- سایت پلان
- پلان ستون گذاری
- پلان تاسیسات برق
- پلان تاسیسات مکانیک
- نقشه نماهای وجه های اصلی ساختمان
- نقشه مقاطع ساختمان
مثلا در یک ساختمان مسکونی در اکثر مواقع کارفرما ها به داشتن یک پلان فاز یک اکتفا میکنند ولی زمانی که کار به اجرا رسید، درصورتی که در فضاها طراحی داخلی خاص یا از اهمیت ویژه ای بر خوردار باشد، درخواست نقشه فاز دو و دتیل های اجرایی میکند.در زیر میتوانید هزینه طراحی برای یک ساختمان مسکونی را ملاحظه بفرمایید.
قیمت طراحی نقشه ساختمان ( پلان معماری فاز یک )
قیمت هر متر مربع
4.000 - 8.000 تومان
قیمت طراحی نقشه ساختمان ( پلان معماری فاز دو )
قیمت هر متر مربع
12.000 - 15.000 تومان
نرم افزار های طراحی پلان
نرم افزار های بسیاری برای طراحی پلان وجود داره که اتوکد بهترین نرم افزار برای طراحی نقشه ساختمان است.
حتما بخوانید:


عالی و مفید بود
خیلی جامع و کامل بود
مطلب کاربردی و مفیدی بود. انشااله در آینده از شما بیشتر استفاده کنیم . با تشکر